Взрыволетный «Орион»: как Штаты планировали после войны покорить космос
- 19 мая 2021 04:20
- warspot
6 августа 1945 года японский город Хиросима был разрушен взрывом атомной бомбы. Американцы продемонстрировали миру оружие массового поражения невиданной силы, с существованием которого с того момента следовало считаться.
Впрочем, появление атомных бомб в арсенале США способствовало не только изменению геополитики, но и возникновению проектов, смелость которых по сей день поражает воображение. Одним из таких проектов стал космический корабль, приводимый в движение энергией ядерного взрыва.
Ядерная «тарелка»
Идея использовать направленный взрыв для разгона космических аппаратов возникла относительно давно. Например, генерал-майор Георгий Иосифович Покровский в 1944 году опубликовал статью «Новый спутник Земли», в которой высказал предложение запустить таким способом небольшой металлический объект на орбиту. Но только появление атомных технологий сделало идею потенциально возможной для реализации.
«Отцом» взрыволётных космических кораблей считается польский математик Станислав Улам. Поздней зимой 1943 года он был завербован в Манхэттенский проект (Manhattan Project), в рамках которого учёные со всего мира разрабатывали американскую атомную бомбу. Секретность была такова, что новоиспечённый сотрудник проекта толком не знал, чем будет заниматься, — ему просто сказали, что когда он прибудет в Принстон, то должен купить билет до железнодорожной станции Лэми (Lamy). Об этой станции, построенной рядом с Лос-Аламосом, в штате Нью-Мексико ходили зловещие слухи: люди, которые отправлялись туда, не возвращались обратно.
Улам стал сотрудником группы Эдварда Теллера, которая работала над термоядерной бомбой. Размышляя над будущим применением атомных технологий, математик пришёл к мысли, что мощную энергию взрывов можно использовать для разгона до космических скоростей. Позднее он утверждал, что первые прикидочные расчёты сделал ещё в 1946 году, однако своим озарением поделился с коллегами позже. Физик Харрис Мейер рассказывал:
«Я слышал, как Стэн говорил об этом — может быть, в 1948 году. Его идея была очень простой. Если вы сбросите термоядерную бомбу позади ракетного корабля, она взорвётся и ударит по нему, толкая вперёд. Он раздумывал о ракетном корабле по размеру не больше „Атласа“ [межконтинентальной баллистической ракеты SM-65 Atlas — длиной от 23 до 26 м] и общей массой 100 тонн. Мы провели мозговой штурм, это было в его привычках, и сразу поняли, что на предложенном принципе нельзя создать пилотируемый корабль. Перегрузки при разгоне раздавят человека в кровавое пятно. Таким образом, нам не надо было беспокоиться и о прочих проблемах: радиоактивности и так далее».
Улам не отказался от идеи, и в августе 1955 года выпустил вместе со своим помощником Корнелиусом Эвереттом записку «О способе толкания снарядов с помощью внешних ядерных взрывов» (On a Method of Propulsion of Projectiles by Means of External Nuclear Explosions). В ней на расчётах было показано, что теоретически можно создать беспилотный комплекс в виде «тарелки» (saucer-shaped) диаметром 10 м и «сухой» массой 12 т, который будет разгоняться с помощью многократных взрывов небольших атомных бомб, и который можно использовать для доставки боезаряда на межконтинентальную дальность или даже выведения аппаратов на орбиту Земли.
По мнению автора записки, «критическая проблема» состояла в том, что трудно обеспечить целостность комплекса под воздействием взрыва. Для её решения они планировали использовать «топливную прокладку» (propellant) в виде пластиковых контейнеров с водой, которые, испаряясь, передавали бы импульс «тарелке» и смягчали силу удара. В качестве «прокладки» можно в перспективе применить сильное искусственное магнитное поле, которое способно удержать плазму, образующуюся в результате взрыва.
В любом случае комплекс будет сильно нагреваться, что требует введения дополнительных технических средств для обеспечения надёжности его полёта. Пятьдесят бомб мощностью от 0,24 до 2,4 кт в тротиловом эквиваленте, которые могла взять на борт «тарелка», предлагалось взрывать с частотой одна в секунду на расстоянии 50 м от комплекса.
«Прокладки» должны были сбрасываться синхронно с бомбами с тем расчётом, чтобы под воздействием взрыва они испарились на расстоянии 10 м. При этом ускорение составило бы 10 000 g, что смущало авторов записки, которые отметили в примечании необходимость отдельного изучения вопросов прочности конструкции. Чтобы избежать влияния атмосферы и загрязнения её продуктами атомного распада, «тарелку» необходимо было выводить в космос с помощью обычной ракеты на химическом топливе.
К 1959 году Улам и Эверетт доработали конструкцию взрыволётного комплекса и получили патент на своё изобретение у Комиссии по атомной энергии (United States Atomic Energy Commission). Новый аппарат больше не напоминал «тарелку», а имел форму цилиндра диаметром 10 м с конусообразным носом. Масса комплекса осталась той же — 12 т. Бомбы сбрасывались сжатым газом через трубу, проходящую сквозь комплекс до кормы; при этом каждая соединялась с кольцеобразной «прокладкой», изготовленной из полиэстера, гибким стальным тросом длиной 40 м — таким образом авторы проекта добились синхронизации их движения и точности расположения в пространстве после отделения от комплекса.

Взрыволёт конструкции Станислава Улама и Корнелиуса Эверетта, 1959 год. Архивная иллюстрация из коллекции Скотта Лоузера
Начало «Ориона»
Хотя конструкции, предложенные математиками, имели множество очевидных недостатков, идея взрыволёта оказалась востребована в конце 1957 года, когда перед американскими учёными была поставлена задача перехватить у Советского Союза инициативу в освоении космоса.
Инициатором нового проекта стал физик Теодор (Тед) Тейлор, который появился в Лос-Аламосе в осенью 1949 года и занимался там теорией движения нейтронов. Знаменитый американский учёный Фримен Дайсон рассказывал:
«Улам очень похож на меня. В основном математик. Иное дело — Тед Тейлор. Мы с Уламом никогда не останавливаемся надолго на какой-то идее, разбрасываемся. Но Тед ухватился за эту концепцию и сделал её намного лучше. Разобрал и осмыслил её, а затем понял, как реализовать в деталях. И он умел организовывать работу. Он запустил проект, чего Улам никогда не смог бы добиться».
В июле 1955 года была основана компания «Дженерал Атомикс» (General Atomics, GA), главной задачей которой стала коммерциализация ядерных технологий. Она оказалась самой подходящей организацией для воплощения в жизнь передовых идей. Тейлор перешёл туда летом 1956 года и первое время под руководством Фримена Дайсона работал над созданием уранового реактора TRIGA (Training, Research, Isotopes, General Atomics), предназначенного для исследований, обучения студентов и производства изотопов.
Когда Тейлор начал размышлять о том, как можно использовать ядерные технологии в космонавтике, то быстро пришёл к выводу, что ничего лучше концепции Улама просто не существует. В декабре 1957 года он сообщил Дайсону о своём намерении построить пилотируемый взрыволётный корабль, причём сразу предложил название будущему проекту — «Орион» (Orion) в честь одного из самых красивых созвездий ночного неба. Дайсон вспоминал, что отнёсся к идее положительно:
«Звучало неплохо. Меня предложение не оттолкнуло. Обычная реакция [всех, кто слышит о взрыволёте] — это возражение, что бомбы разнесут корабль на куски. Но меня это как раз не беспокоило. С технической точки зрения идея имела смысл. Это было похоже на то, чего мы все ждали. Это была альтернатива ракетной технике на химическом топливе, которая могла работать».
Весной 1958 года Фримен Дайсон взял отпуск в Институте перспективных исследований (Institute for Advanced Study, IAS) и погрузился в анализ идеи «Ориона». В июле он подготовил манифест, изложив своё представление о необходимости постройки взрыволётного корабля:
«С самого детства я был убеждён, что люди доберутся до соседних планет при моей жизни, и что я должен буду помогать им в этом предприятии. Если попытаться рационализировать это убеждение, то приходишь к выводу, что оно опирается на два верования, одно из которых имеет отношение к науке, а второе — к политике. 1. Есть намного больше предметов для изучения на небе и Земле, чем может вообразить наша современная наука. И мы узнаем о них, только если пойдём и поищем. 2. В долгосрочной перспективе при развитии цивилизации исчезнут места, куда смогут отправиться небольшие группы людей, чтобы жить в отрыве от своих соседей и своих правительств так, как им заблагорассудится. По-настоящему изолированное, маленькое и творческое сообщество никогда больше не возникнет на нашей планете. К этим двум символам веры я должен теперь добавить третий. 3. Мы впервые придумали способ использования огромных запасов наших бомб для решения лучшей задачи, чем убийство людей. Моя цель и моё убеждение состоит в том, что бомбы, которые убивали и калечили жителей Хиросимы и Нагасаки, однажды откроют небеса для человека».
Инициативу поддержали и другие физики из «Дженерал Атомикс». Компания заключила контракт с Агентством перспективных исследовательских проектов (Advanced Research Projects Agency, ARPA) и получила миллион долларов на разработку концепта (ARPA Project 4977), который учёные обязались представить в течение десяти месяцев. Позднее контракт был продлён.
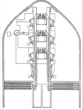
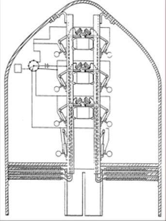
Первоначальная версия «Ориона», получившая название «Марк-1» (Mark 1), была огромной. Она представляла собой транспортное средство, формой напоминавшее пистолетную пулю, с наибольшим диаметром 40 м и массой 4000 т; при этом в космос выводилась полезная нагрузка весом 1000 т. Внутреннее помещение было разделено на пять палуб, четыре из которых содержали восемь конвейеров с небольшими атомными зарядами общим числом 2200 штук.
В корме располагалась стальная толкающая плита (Pusher Plate) с амортизаторами, которая должна была рассеивать энергию атомного взрыва, постепенно передавая импульс всему комплексу. Считалось, что при подборе оптимальной системы удастся снизить перегрузки, действующие на экипаж, с тысяч до единиц g. Рассматривались разные варианты амортизаторов: надувные «подушки», трубчатые пневматические амортизаторы
Отчёт по «Марку-1» физики подготовили в декабре 1958 года, но всем участникам проекта было понятно, что тот выглядит очень «сырым». К апрелю следующего года появился вариант «Марк-2» (Mark 2) полусферической формы — не самый лучший выбор с точки зрения аэродинамики, но разработчики исходили из соображения, что для столь мощного комплекса проблема обтекания имеет несущественное значение. Кормовая часть корабля состояла из целого леса амортизаторов. Толкающая плита сохранилась в неизменном виде: диаметром 40 м и массой 1000 т.
Количество атомных зарядов мощностью 5 кт уменьшили до 1400, расположили на двух палубах и снабдили небольшими ракетными двигателями, которые помогали точно позиционировать взрыв за толкателем. Понятно, что такая система снижала общую надёжность, но у неё было неоспоримое преимущество — множество стартовых позиций атомных зарядов: если один из них не сможет сойти с направляющей, то будет легко заменён другим. Ещё 600 зарядов предполагалось вывести на орбиту в составе полезной нагрузки, чтобы затем использовать в ходе межпланетной миссии.

Взрыволёты Mark 1 и Mark 2 в представлении современного художника Ника Стивенса; для сравнения размеров иллюстрация дополнена изображением ракетно-космической системы Space Shuttle

Варианты доставки заряда для взрыволёта типа «Mark» в расчётную точку взрыва: слева — через периферийные пусковые орудия, справа — с помощью собственного ракетного двигателя. Архивная иллюстрация из книги Джорджа Дайсона «Project Orion.
В то же самое время возникла идея центральной пушки (Central Gun), которая выстреливает атомный заряд точно по оси вращения взрыволёта. Она выглядела самым простым решением проблемы доставки заряда, однако имела существенный недостаток — в толкающей плите пришлось бы проделать отверстие, что резко снижало её прочность в условиях ударного воздействия.
Вообще говоря, авторы проекта хорошо понимали, что самыми уязвимым для критики элементом «Ориона» является толкатель с системой амортизации. Поэтому, пытаясь решить технические проблемы, рассматривали множество экзотических вариантов. В качестве материала для плиты, помимо жаростойкой стали, изучалась возможность применения алюминия, стекловолокна и даже… дерева. Хотя прочностной расчёт показал, что эти материалы в любом случае непригодны для большеразмерной конструкции, специалисты «Дженерал Атомикс» заказали плиту из стекловолокна и путём нагрузочных экспериментов убедились, что её можно использовать на небольших моделях-демонстраторах.
Не меньше вопросов вызывала система амортизации. Тороидальные надувные «подушки» снижали перегрузки с тысяч до сотни g, но этого было явно недостаточно даже для беспилотного комплекса. Хуже того, в случае «осечки» (несрабатывания одного из сброшенных зарядов) плита в своём возвратно-поступательном движении могла просто разорвать гибкий материал «подушек», что привело бы к гибели корабля. После тщательного анализа разработчики решили применить двухступенчатый амортизатор: толкатель прикреплялся к надувным «подушкам», а они через промежуточную плиту — к пневматическим поршням. Согласно расчётам, с помощью такой системы передачи импульса перегрузку на жилой палубе взрыволёта можно было снизить до 4 g.

Схема работы двухступенчатой системы амортизации взрыволёта. Архивная иллюстрация из коллекции Скотта Лоузера
Модели «Ориона»
Многие проблемы, связанные с проектом «Орион», решались впервые, поэтому расчётов не хватало для того, чтобы удостовериться в правильности принятых технических решений. Сотрудники «Дженерал Атомикс» разработали подробную программу испытаний специальных моделей, которые помогли закрыть часть вопросов.
Самая первая модель, упоминаемая в отчётах, использовалась во второй половине 1958 года для выяснения, какое приращение скорости в реальности способен дать взрыв. Её изготовили из стекловолокна в масштабе 1:130, снабдили металлическим толкателем и амортизатором из пенопласта. Модель испытывали на полигоне в Пойнт-Ломе (Сан-Диего), поднимая краном на тросе в вертикальном положении. Под ней, на расстоянии 30 см от центра толкателя, подвешивался на струне небольшой пакет с взрывчаткой. После детонации струна сгорала, а модель подбрасывало вверх. Меняя форму и материал амортизатора, можно было также получить сведения о путях их оптимизации.

Подготовка подвешиваемой модели взрыволёта к испытаниям на полигоне в Пойнт-Ломе (Сан-Диего). Архивный кинокадр из коллекции Скотта Лоузера

Подготовка летающей «Модели-1» (Model I, Putt Putt) к испытаниям на полигоне в Пойнт-Ломе (Сан-Диего). Архивный кинокадр из коллекции Скотта Лоузера
Следующий этап предусматривал создание летающей «Модели-1» (Model I или Putt Putt), которая по форме пока не отличалась от подвешиваемой. Для неё был изготовлен большой алюминиевый толкатель, соединённый с магазином, который содержал пять зарядов пластичной взрывчатки Си-4, сформированной в виде шариков. Первый запуск маленького взрыволёта был проведён 19 сентября 1959 года. Старт осуществлялся с помощью обычного пороха; при полёте начинал работать механизм сброса зарядов, имитирующий центральную пушку; те взрывались под толкателем через каждые 0,35 секунды, давая приращение скорости 5,4 м/с. Достигнув вершины траектории, модель выпускала парашют и приземлялась.
В качестве варианта была построена облегчённая модель «Модель-2» (Model II или Hot Rod) без аэродинамического обтекателя. Она показала характеристики полёта ничуть не хуже, чем предшественница, что подтвердило предположение физиков о малом влиянии сопротивления воздуха на движение взрыволётных конструкций. Последнее испытание в серии состоялось 14 ноября 1959 года — при этом запущенная «Модель-2» поднялась на максимальную высоту 56,4 м (185 футов).
Испытания фиксировались на киноплёнке, а после их завершения был смонтирован документальный фильм, который доказал многим скептикам, в том числе конструкторам ракет, реальность создания взрыволётной технологии.

Полёт «Модели-2» (Model II, Hot Rod) после запуска на полигоне в Пойнт-Ломе (Сан-Диего); ноябрь 1959 года. Архивные кинокадры из коллекции Скотта Лоузера
Другое направление испытаний было связано с изучением воздействия плазмы, образующейся в результате атомного взрыва, на толкатель. Физики построили стенд, в котором тонкостенная свинцовая трубка испарялась взрывом бризантного вещества, после чего металл в газообразном состоянии направлялся на испытуемый образец, закреплённый в вакуумной камере. Скорость движения плазмы оказалась ниже, чем расчётная для «Ориона», но температура (около 80 000 °С) была близка к реальной при тепловом излучении вблизи центра взрыва. Испытания в целом подтвердили верность проделанных ранее расчётов и помогли определиться с вариантами абляционного покрытия для толкателя.
На следующем этапе планировалось начать экспериментальное изучение большеразмерных моделей «Ориона» по типу тех, которые проводятся для элементов ракет-носителей на химическом топливе. В архивах сохранилась записка «Предварительное исследование испытательной установки взрывного импульса» (Preliminary Investigation of a Repetitive-HE-Pulse Test Facility), датированная 4 июня 1964 года, с подробным описанием огромного стенда, предназначенного для испытаний прототипа. Записку подготовил немецкий авиаинженер Ганс Амтманн, перебравшийся в США вместе с другими специалистами во время осуществления операции «Скрепка» (Operation Paperclip). Он предлагал изучить варианты системы амортизации, используя заряд обычной взрывчатки массой 7,7 т, детонирующей напротив толкающей плиты диаметром 4 м. Стенд рациональнее всего было строить в скальном утёсе, а его размеры позволяли при необходимости разместить взрыволёт целиком — правда, в перевёрнутом виде. Заряды Амтманн собирался транспортировать от бункера хранения до места детонации по рельсовому пути. В качестве одного из вариантов рассматривалась возможность снабдить заряды небольшими твердотопливными двигателями, которые помогли бы точно позиционировать взрыв над толкателем.

Общий вид испытательной установки взрывного импульса. Архивная иллюстрация из книги Джорджа Дайсона «Project Orion.
Если бы проект «Орион» продолжал развиваться, то раньше или позже настал бы черёд испытаний с реальными атомными зарядами. Для них разрабатывался миниатюрный плутониевый снаряд LENS (Low Energy Nuclear Source), выстреливаемый из пушки. Он должен был состоять из одной или нескольких оболочек из обеднённого урана, вольфрама или другого плотного материала, служащего отражателем при запуске цепной реакции деления. Заряд предполагали помещать в неглубокую шахту, из которой выкачивался воздух вплоть до вакуума, чтобы имитировать условия космического пространства. Сверху на шахте собирались установить либо амортизационную систему с толкателем, либо цельный прототип взрыволёта.

Схема испытаний прототипа взрыволёта с использованием ядерного заряда типа LENS. Архивная иллюстрация из коллекции Скотта Лоузера
Далее были запланированы лётно-конструкторские испытания. Вначале — суборбитальные прыжки прототипа с использованием не более пятидесяти зарядов; при этом ядерно-импульсный двигатель должен был включаться на высоте около 120 км, куда прототип доставила бы обычная ракета-носитель. В апогее траектории взрыволёт направлялся вниз с тем, чтобы, выпустив парашюты, приводниться в океане. Там его выловил бы специальный корабль с большим краном и защищённым бункером, в котором вернувшийся из космоса прототип могли осмотреть специалисты.
В качестве носителя собирались применить сверхтяжёлую ракету «Сатурн-5» (Saturn V), которая создавалась для американской лунной программы. Специалисты из «Дженерал Атомикс» полагали, что им хватит девяти ракет: три для испытаний двигательных модулей в суборбитальных полётах, три для орбитальных полётов беспилотного прототипа и три для стартов с экипажами.
Впрочем, в своих планах разработчики «Ориона» заглядывали ещё дальше. На ранней стадии их лозунгом стало: «Луна — к 1965 году, Сатурн — к 1970 году» (The Moon by 1965, Saturn by 1970). Однако они быстро осознали сложность инженерных задач, которые необходимо было решить перед организацией межпланетных миссий, поэтому сдвинули крайний срок начала орбитальных полётов на 1975−1976 годы, а первую лунную высадку, репетирующую марсианскую экспедицию, — на 1979−1980 годы.

Прототип взрыволёта «Orion», версия 1961 года. Архивная иллюстрация из книги Джорджа Дайсона «Project Orion.
Космический линкор
К 1962 году прототип взрыволёта обрёл более или менее завершённый вид. Общая масса осталась той же — 4000 т, но уменьшился максимальный диаметр — до 26 м (86 футов). Конструкция стала более аэродинамически изящной, а сброс зарядов решили осуществлять всё-таки через центральную пушку, усилив толкающую плиту и придав ей особую форму, уменьшающую концентрацию напряжений. Кроме того, для сохранности внешнего слоя плиты её придумали опрыскивать минеральным маслом.
В то же время стало ясно, что дальнейшее развитие проекта потребует значительного финансирования, которое могут обеспечить только военные. Фримен Дайсон рассказывал:
«Мы столкнулись с морально-этической проблемой: следует ли опираться на поддержку ВВС или НАСА [Национального управления по аэронавтике и исследованию космического пространства]? Военно-воздушные силы, естественно, видят в нашем корабле главным образом оружие, в то время как НАСА должно быть заинтересовано в научных исследованиях. Так что в идеале мы должны работать на НАСА и избегать Военно-воздушных сил. Однако на практике всё обстоит не так просто. Во-первых, нет никаких сомнений, что как только наш корабль взлетит, обе организации будут настаивать на том, чтобы заполучить его — так что на самом деле не такая уж большая разница в том, кто оплатит первоначальную разработку. Во-вторых, ВВС гораздо менее забюрократизированы и вообще с ними легче сотрудничать. Так что мы решили, по крайней мере, на время остаться с ВВС. Думаю, это было мудрое решение. Представить себе, что космический корабль такого типа мог быть построен без каких-либо соображений военного применения, было бы только самообманом. Конечно, мы все сожалеем, что военные аспекты проекта вышли на первый план. Но так уж обстоят дела После того как НАСА было сформировано и занялось космонавтикой, ВВС поддерживали проект на том основании, что он имеет военное значение. Так что я потратил довольно много времени, думая о том, как можно использовать наш проект, и действительно увлёкся, представляя себе „машины Судного Дня“ . Среди прочего была версия „Ориона“, которая несла на себе весь арсенал ядерных ракет, — её было бы невозможно атаковать, потому что в таком случае корабль просто развернулся бы кормой к летящим [вражеским] боеголовкам и уничтожил их собственными [толкающими] зарядами. Мы делали для проекта то, чего не хотели делать, но полагали, что должны сохранить ему жизнь».

Зарисовка одного из возможных военных применений взрыволёта типа «Orion»: нанесение массированного ядерного удара по наземным целям с орбиты. Архивная иллюстрация из книги Джорджа Дайсона «Project Orion.
Со своей стороны ВВС (United States Air Force, USAF) сформулировали требования к «Ориону». Военные полагали, что взрыволёты можно использовать как средство постоянного мониторинга вражеских объектов; как платформу для размещения средств противоракетной обороны; как носитель глобального постановщика помех; как пусковой комплекс для собственных межконтинентальных ракет; как инструмент «устрашения», противодействующий аналогичным комплексам противника, если те когда-нибудь будут созданы. ВВС собирались вывести на разные орбиты не менее двадцати взрыволётов со сроком жизни от 15 до 20 лет; при этом пилотируемые комплексы должны были обслуживаться экипажами численностью от 20 до 30 человек. Предполагалось, что враг не сможет незаметно атаковать взрыволёт — на развёртывание необходимых средств понадобится не менее суток, соответствующая активность будет выявлена, а экипаж успеет подготовиться к отражению атаки и нанесению «удара возмездия». Таким образом, по мнению аналитиков ВВС, Соединённые Штаты получили бы универсальную систему «глобального сдерживания», обеспечивающую стратегическое преимущество на десятилетия вперёд. Само её существование позволило бы отказаться от расточительного содержания ядерной «триады»: межконтинентальных ракет, бомбардировщиков и субмарин.
Чтобы удовлетворить требования заказчика, в рамках проекта № 3775 (Air Force Project 3775) физики разработали концепцию небольшого взрыволёта, получившего в литературе названия «10-метровый Орион» (10-meter Orion) и «Космический линкор» (Space Battleship). Его максимальный диаметр, определяемый размером толкающей плиты, составлял всего 10 м (32,8 фута), длина не должна была превышать 49 м (160 футов), а «сухая» масса оценивалась в 91 т. Собирать его предполагалось на орбите из четырёх модулей, доставляемых ракетами «Сатурн-1» (Saturn IC) и «Сатурн-5» (Saturn V).
Движущие заряды, помещённые в оболочки из вольфрама и урана, весили 79 кг и имели номинальную мощность 1 кт в тротиловом эквиваленте. Главная «изюминка» заряда (или импульсного блока, как его стали называть) состояла в том, что за счёт формы и расположения элементов удалось добиться кумуляции энергии взрыва в определённом направлении — к толкающей плите, что повышало эффективность действия. Хотя подробности о реальном устройстве заряда засекречены, есть сведения, что на схожих принципах и оставшемся после «Ориона» заделе создавались кумулятивные ядерные устройства для уничтожения вражеских межконтинентальный ракет в полёте (Project Casaba-Howitzer). Возможно, такое устройство было испытано во время серии подземных ядерных взрывов на полигоне Невада, проведённой с октября 1984 года по сентябрь 1985 года (Operation Grenadier).

Взрыволётный космический корабль «10-meter Orion». Архивная иллюстрация из книги Джорджа Дайсона «Project Orion.

Импульсный блок с ядерным зарядом для взрыволётного космического корабля «10-meter Orion». Архивная иллюстрация из книги Джорджа Дайсона «Project Orion.

Схема действия атомного заряда (импульсного блока) при разгоне взрыволёта. Архивная иллюстрация из книги Джорджа Дайсона «Project Orion.
Марсианские планы
Разумеется, авторы проекта надеялись, что взрыволёты ВВС будут использоваться не только для решения военных задач, но и для исследовательских полётов в дальний космос. Их уверенность в осуществимости экспедиций к соседним планетам подкреплялась одобрением заказчиков, которые при встречах давали понять, что рассматривают и такую возможность.
Ещё в декабре 1961 года Тед Тейлор по результатам совещаний с коллегами составил список основных целей, которые должны быть достигнуты в ходе реализации проекта «Орион»:
«1) Создание пилотируемой орбитальной космической лаборатории путём сборки модулей, доставляемых ракетами на химическом топливе; 2) создание обитаемой лунной базы; 3) пилотируемая экспедиция с высадкой на поверхность Марса».
Вскоре план Тейлора обрёл ясный вид в виде документов. Сначала физики предполагали, что модули межпланетного корабля «Орион» будут выводиться ракетами-носителями лишь до высоты 90 км, после чего на «опорную» орбиту доберутся «своим ходом». В конечном итоге от этого варианта отказались из-за опасности загрязнения высших слоёв атмосферы продуктами атомного распада.
Межпланетный взрыволёт, как и в варианте для ВВС, состоял из четырёх главных модулей: ядерно-импульсной системы (Propulsion Module), кассет атомных зарядов (Propellant), транспортного средства (Complete Vehicle) и полезной нагрузки (Operation Payload). В зависимости от целей миссии они могли иметь разные размеры и массу, которые ограничивались только возможностями ракет «Сатурн-5».

Стартовый комплекс ракет-носителей «Saturn V» при подготовке к запуску на орбиту модулей межпланетного корабля «Orion». Архивная иллюстрация из коллекции Скотта Лоузера
Строительство орбитальной станции и пробные полёты к Луне рассматривались как промежуточные в ходе реализации марсианской экспедиции. Для её осуществления, по мнению разработчиков, потребовалось бы собрать в околоземном пространстве как минимум два взрыволёта «Орион». Каждый из них мог доставить к Марсу экипаж из восьми астронавтов, снабжённых всем необходимым для межпланетного путешествия и высадки на поверхность. Запасы системы жизнеобеспечения рассчитывались на экспедицию продолжительностью 450 суток (расчёт делался при условии, что старт состоится в 1975 году).
Особое внимание проектанты уделили модулю экипажа. Он располагался сверху несущей соединительной конструкции, на которую «навешивались» кассеты с ядерными зарядами и другая полезная нагрузка. Там же размещались посадочный марсианский корабль и спускаемая капсула, в которой экипаж мог вернуться на Землю. Расположение обитаемых элементов в «головной» части «Ориона» имело целью не только защиту от радиационного воздействия при взрывах импульсных блоков, но и опиралось на соображения создания искусственной силы тяжести: если во время разгона нагрузка действует по продольной оси взрыволёта, то в период межпланетного путешествия его предполагалось раскрутить подобно карусели со скоростью четыре оборота в минуту — соответственно, возникающая центробежная сила достигала максимума именно на периферийных участках несущей конструкции.
Конечно, разработчики учли, что направление действия искусственной силы тяжести изменится, а условный «пол» станет для астронавтов «потолком». Для этого модуль экипажа проектировался как комплекс, состоящий из двух частей: жилого отсека (Personnel Accommodations) и транспортного корабля (Powered Flight Station). Последний должен был служить в качестве средства доставки экипажей на взрыволёт и убежищем во время работы ядерно-импульсного двигателя. Суммарная доза облучения экипажа не должна была превысить 100 бэр за миссию, поэтому жилую часть «Ориона» планировали защитить толстым свинцовым покрытием и контейнерами с водой.
Кроме того, транспортный корабль предполагали использовать как спасательную «шлюпку» (Escape Vehicle). Если бы на «Орионе» произошла та или иная разрушительная авария, экипаж должен был эвакуироваться в корабль, после чего тот был бы отброшен в пространство твердотопливными ускорителями. Отойдя на безопасное расстояние, астронавты примут оптимальный вариант завершения миссии, после чего направят свою «шлюпку» к Земле с помощью жидкостных двигателей маневрирования. Запасы транспортного корабля были рассчитаны на 90 суток автономного полёта. Интересно, что в носовой части «шлюпки» проектанты собирались разместить незащищённый отсек с обзором через широкий иллюминатор — они полагали, что туда будет периодически подниматься штурман «Ориона», чтобы проконтролировать маршрут.
Астронавты должны были провести на поверхности Марса около месяца. Для их высадки один из «Орионов» нёс на себе два посадочных корабля MEM (Manned Mars Excursion Module) вместимостью до трёх человек каждый. Корабли были спроектированы специалистами фирмы «Аэронутроник Дивижн» (Aeronutronic Division of Philco Ford) в начале 1964 года.
Для завершающего этапа марсианской экспедиции разработчики тоже предусмотрели несколько вариантов: астронавты при приближении к Земле могли либо пристыковаться к ожидающему их эвакуационному кораблю (Mission M-1), либо покинуть «Орион» внутри спускаемой капсулы (Missions M-2 and M-3), либо вывести взрыволёт на эллиптическую орбиту для использования в будущем (Mission M-4). Каждый из вариантов предусматривал внесение изменений в общую компоновку, габариты и тяговооружённость «Ориона».

Астронавты экипажа взрыволёта «Orion» на поверхности Марса. Архивная иллюстрация из коллекции Скотта Лоузера
Межзвёздный транспорт
5 августа 1963 года Советский Союз, Соединённые Штаты и Великобритания подписали Договор о запрещении испытаний ядерного оружия в атмосфере, космическом пространстве и под водой. В октябре он вступил в силу, что сделало проблематичным реализацию проекта «Орион».
В феврале 1965 года финансирование было остановлено, а проект закрыт. Его скромные результаты объясняются тем, что над «Орионом» никогда не работало больше пятидесяти специалистов одновременно, а финансирование не превышало 150 000 долларов в месяц.
Однако сама идея взрыволётного корабля продолжала завораживать и, когда сведения о нём начали просачиваться в прессу, сразу привлекла энтузиастов космонавтики своей смелостью и потенциальными возможностями. К примеру, сохранилось свидетельство знаменитого фантаста Артура Кларка, который утверждал, что концепцию «Ориона» собирался использовать Стэнли Кубрик при экранизации романа «2001: Космическая одиссея» (2001: A Space Odyssey, 1968):
«Когда мы начали работу, некоторые из документов «Ориона» были только что рассекречены и переданы нам учёными, возмущёнными закрытием проекта. Показалось захватывающей идеей продемонстрировать ядерно-импульсную систему в действии, и было проведено несколько подготовительных исследований, но через неделю или около того Стэнли решил, что взлёт с Земли с помощью взрывов двадцати атомных бомб в минуту будет выглядеть комичным. Больше того, вспоминая финал «Доктора Стрейнджлава» [сатирического фильма «Dr. Strangelove or: How I Learned to Stop Worrying and Love the Bomb», премьера которого состоялась в 1964 году], многие зрители могут подумать, что он [Кубрик] действительно научился Любить Бомбу. В результате он убрал взрыволёт, и единственным упоминанием проекта, который сохранился как в фильме, так и в романе, остаётся название [одного из космических кораблей]".
Задел по «Ориону» изучался инженерами авиакосмическом компании «Мартин» (Martin Company), которая среди прочего занималась проектированием ракет-носителей. На основе полученной документации они разработали свой вариант ядерно-импульсного двигателя, в котором использовалась не толкающая плита, а сферическая камера с соплом, что позволяло на порядок повысить эффективность работы. Обновлённую взрыволётную систему предполагали использовать для создания орбитальных «челноков» и покорения Солнечной системы. Практические работы начались в конце 1963 года в рамках проекта «Гелиос» (Project Helios), предусматривавшего создание корабля для полёта к Марсу, и были остановлены по тем же причинам, что и «Орион».

Один из вариантов взрыволётного межпланетного корабля, разработанного в рамках проекта «Helios». Архивная иллюстрация из коллекции Скотта Лоузера
Фримен Дайсон, который отдал «Ориону» несколько лет жизни, тоже не смог забыть ни его, ни свои «символы веры». В октябре 1968 года он опубликовал статью «Межзвёздный транспорт» (Interstellar Transport), которая стала первой в ряду высказываний учёного, посвящённых развитию идеи огромного взрыволётного «ковчега», который отправится в путешествие к ближайшим звёздам. Он полагал, что в случае некоей глобальной катастрофы землянам вполне по силам построить корабль массой в несколько миллионов тонн, рассчитанный на полное обеспечение потребностей двадцати тысяч человек. При этом максимальная скорость корабля составила бы 1000 км/с, то есть один парсек он преодолевал бы за тысячу лет. Двигать корабль будут не обычные атомные бомбы, а мощные термоядерные заряды. Стоимость проекта Дайсон оценил в 600 млрд долларов, что в то время соответствовало валовому внутреннему продукту США.
Идея Дайсона выглядит утопической, но её продолжают обсуждать в дискуссиях по вопросам организации межзвёздных экспедиций. И вполне может быть, что именно ядерно-импульсные взрыволёты станут инструментом для завоевания человечеством Солнечной системы, а позднее — Галактики. Ведь ничего лучше пока не придумали.

Взрыволёт «Orion» на околоземной орбите в представлении современного художника. Иллюстрация из коллекции Скотта Лоузера
- Телеграм
- Дзен
- Подписывайтесь на наши каналы и первыми узнавайте о главных новостях и важнейших событиях дня.




Войти через социальные сети: