Какие открытия ждет МЦД в предстоящем году
- 07 февраля 2022 01:42
- loader-blog.livejournal.com
Сегодня мы посмотрим на ещё один рендер реконструируемой станции Лианозово и внесём ясность в очерёдность работ на строящейся Ольгино и планируемой к реконструкции Железнодорожной. Поехали.
Лианозово
14 января 2022-го года в газете «Гудок» был опубликован ещё один рендер переносимого на запад к строящейся станции «Лианозово» на Люблинско-Дмитровской линии метро одноимённого остановочного пункта Савёловского направления Московской железной дороги и МЦД-1. На рендере показан вид с юга на север на островные платформы и восточный подземный вестибюль.
Ещё один рендер стал доступен ранее, 27 марта 2021-го года в официальном Telegram-канале Департамента транспорта города Москвы. Теперь можно предположить, что там был изображён западный подземный вестибюль, что будет соединён с северным вестибюлем строящейся станции метро.
Строительные работы здесь начались в конце 2021-го года. Остановочный пункт будет перенесён в сторону области почти на 100 м. После его ввода на старом месте наземный пешеходный переход у Лианозовского рынка будет ликвидирован. Вероятно, все необходимые работы проведут в 2022-24 годах. Строительство ведёт компания «Мостотрест 136».
(фото от 01.12.2021, автор — Султан Челушкин, vk.com/wall-206658275_94)
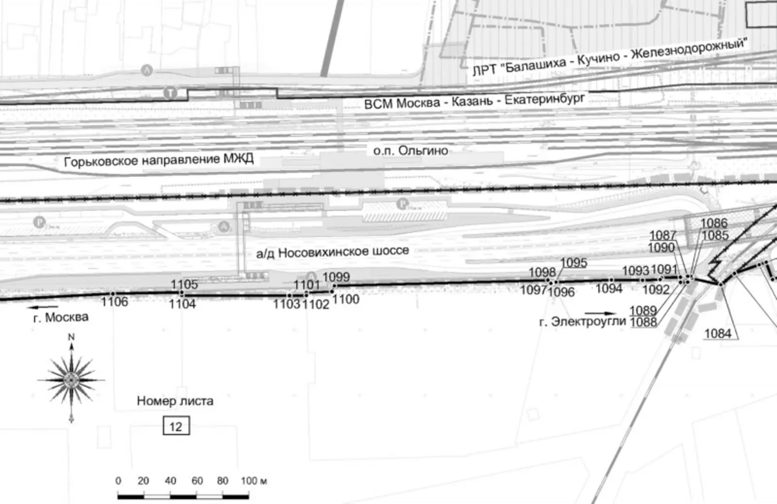
Ольгино и Железнодорожная
Если совершаешь ошибки, то нужно их признавать. В своём посте-обзоре на строящийся остановочный пункт Горьковского направления Московской железной дороги и будущего МЦД-4 я не до конца разобрался в истории вариантов его проекта, так как в их источниках царила знатная мешанина. Однако сейчас, я надеюсь, мне удалось восстановить их верную хронологию.
Рендеры, появившиеся первыми, соответствуют самому раннему варианту, он же был показан на схеме Проекта организации строительства, датированной 20 ноября 2020 года (смотри выше), которая была в госзакупке от 30 августа 2021 года. Такая схема там была одна и с этой датой, остальные же схемы конкорса были выполнены в декабре 2020 года.
На схеме и этих рендерах вы можете видеть, что южный выход конкорса был повёрнут на восток, тогда как позднее его повернули на запад к планируемому подземному пешеходному переходу под Носовихинским шоссе. На схеме есть и ещё одна интересная особенность — временная береговая платформа, она обведена розовы контуром.
Дело в том, что изначально планировалось ввести временную островную платформу, чтобы обеспечить более ранний пуск этого остановочного пункта. А позднее достроить основную платформу и конкорс. Очевидно, что временная платформа мешала бы строительству конкорса, но только так можно было ускорить строительство, разделив его на два этапа.
Схема более позднего варианта стала доступна 13-го мая 2021-го года, то есть раньше, чем в сеть попали рендеры более раннего. И вот как она выглядит:
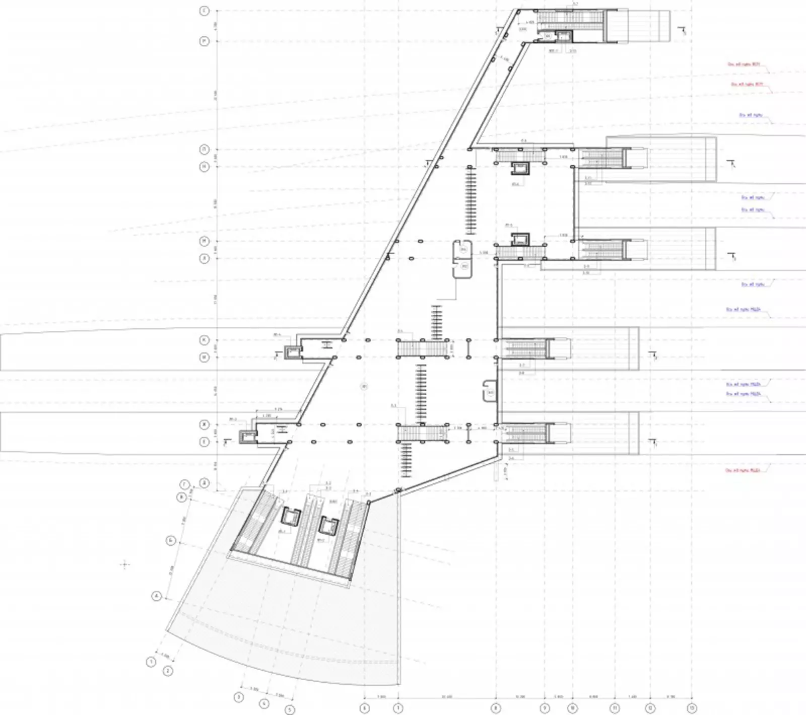
Здесь показаны перспективные подземные переходы под улицей Молодой Ленинец и Носовихинским шоссе. В конце ноября 2021-го года в сеть была выложена презентация проекта от администрации городского образования Балашиха, на территории которого расположится остановочный пункт. И в ней мы можем наблюдать всё тот же вариант с южным выходом, повёрнутым на запад, но вместо подземного перехода под улицей Молодой Ленинец тут показан перспективный «подземник» под Керамической улицей:
Но это не самый интересный слайд из этой презентации, так как этот вариант проекта мы уже видели. Следующий момент — это временная инфраструктура остановочного пункта, которая планировалась ко вводу в конце 2021-го года, но не успели. На этот раз временная островная платформа должна будет стать продолжением постоянной (вернее, наоборот). Также появится временные же кассово-турникетный павильон и пешеходный мост:
Схема надземного конкорса из презентации (примечательно, что там же есть и рендер первого варианта — опять мешанина, как обычно, в документах):
Здесь ничего нового по сравнению со схемой от 1-го декабря 2020-го года:
В презентации от ноября 2021-го года есть ещё одна схема, где временные пешеходный мост и кассово-турникетный павильон размещены по-другому (смотри ниже). Видимо, это новый вариант проекта с подземным вестибюлем:
Южный павильон этого подземного вестибюля был изображён на рендере, который стал доступен 14-го августа 2021-го года:
Вот ещё пара картинок, которые появились в репортаже телеканала «360», где видно, что надземный конкорс заменили подземным вестибюлем:
Ну, а мы продолжим знакомиться с данными из ноябрьской презентации 2021-го. Вот график строительства, общий для Ольгино и Железнодорожной:
Тут видно, что на временную инфраструктуру остановочного пункта Ольгино отводится шесть месяцев, и она должна была быть введена до конца 2021-го года, но не успели. Предположу, что задержка тут минимум на квартал. Часть инфраструктуры (часть постоянной островной платформы) будет построена вместе с временной и продолжит сооружаться дальше, на всё отводится целых два года. А вот график от 20-го ноября 2020-го года утверждал, что все работы займут семь месяцев (куда делись выпавшие январь — май, загадка):
После ввода временной инфраструктуры на Ольгино, туда перенесут части поездов конечную остановку, чтобы вывести из эксплуатации на станции Железнодорожная береговую платформы №1 и островную №2 и снести здание вокзала:
Но на общей шкале также показан и вариант, при котором ничего временного на остановочном пункте Ольгино не строится (верхний график). При таком развитии событий к реконструкции Железнодорожной смогут приступить уже после ввода Ольгино в постоянном варианте, то есть не ранее 4-го квартала 2023-го года, вероятно, уже после запуска МЦД-4. Так или иначе, стройка на конечной станции займёт около трёх лет, что чуть меньше доступного ранее графика работ, подготовленного 20-го ноября 2020-го года:
При строительстве временной инфраструктуры на Ольгино выигрыш по времени строительства Железнодорожной выходит около двух лет, так как работы и там, и там могут проводиться параллельно. Вопрос в том, какой из двух вариантов был выбран. Сообщение пресс-службы Московской железной дороги от 12-го января 2022-го года содержит следующий текст:
Железнодорожники уже приступили к возведению временной пассажирской платформы и моста для безопасного пересечения путей с выходами на Носовихинское шоссе и улицу Молодой Ленинец. В ноябре работники путевого хозяйства переложили путь на новую ось, освободив место для строительства временной платформы, которую планируется открыть летом 2022 года.
Если всё так, то следующим на очереди будет временный пешеходный мост на Железнодорожной для доступа на временную островную платформу №5 и старую платформу №3 (их снесут последними, заменив островными №3-4):
После ввода временной инфраструктуры на Ольгино, на Железнодорожной закроют старые береговую платформу №1 и островную №2 для строительства там островных платформ №1 и №2 и части надземного конкорса. Островные платформы №3 и №4 на месте временной островной №5 и старой островной №3, а также вторую часть конкорса построят в последнюю очередь уже после ввода МЦД-4. С учётом задержки, работы должны завершить в 2025-м году. А вот про Ольгино на одном из слайдов презентации было указано завершение работ до конца 2024-го года, тогда как на графике это конец 2023-го.
Кстати, чертежи Железнодорожной несколько отличаются от рендеров. Так, на чертежах на выдвинуты на восток два схода на платформы (северные), а на рендерах — один (тоже северный). Привожу рендеры реконструированной Железнодорожной (остальные схемы конкорса можете посмотреть здесь):
Если кто-то бывает в районе Ольгино и Железнодорожной то, пожалуйста, поделитесь фотографиями того, как идут работы. А то последнее, что мне удалось найти, это видео проезда мимо Ольгино от декабря 2021-го года:
Ну, и репортаж от 14-го января 2022-го года телеканала «360»:
На этом сегодня всё. Спасибо за внимание! Подписывайтесь, комментируйте.
- Телеграм
- Дзен
- Подписывайтесь на наши каналы и первыми узнавайте о главных новостях и важнейших событиях дня.





























Войти через социальные сети: